.jpeg)
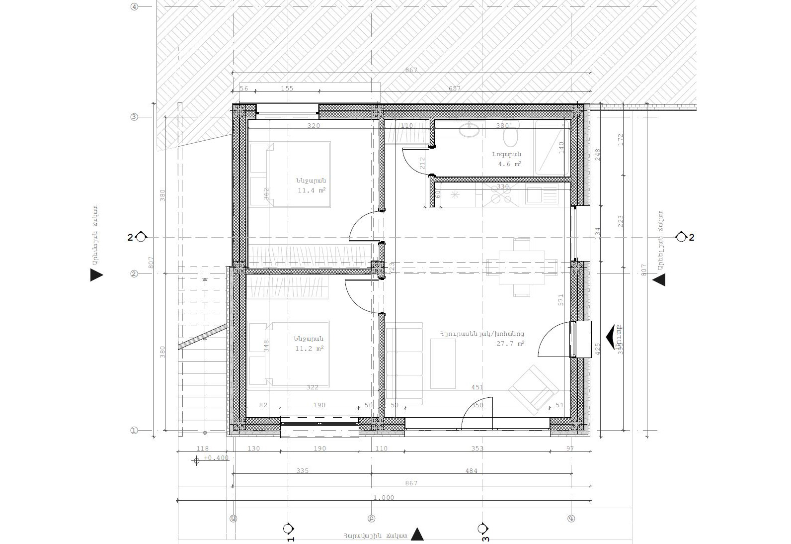
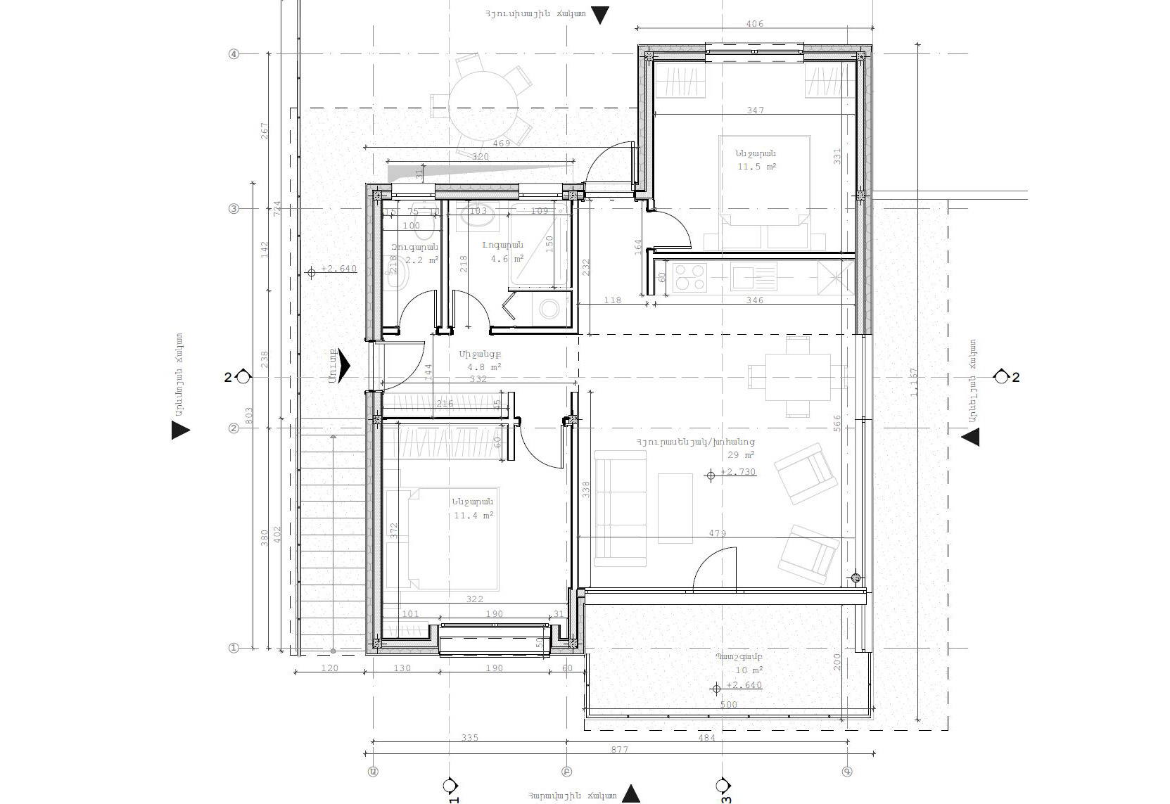
Village House is a residential project in Ushi, Armenia, centred on the adaptive reuse of an unfinished Soviet-era structure. The original one-story shell, left incomplete for decades, is carefully transformed into a livable summer house through targeted, low-impact interventions.
This approach is part of a broader urban planning initiative that aims to rehabilitate abandoned or half-constructed houses throughout the village. Rather than demolishing and rebuilding, the focus is on completing existing structures in ways that are efficient, sustainable, and respectful of the original context. The project’s broader goal is to reevaluate the Soviet-era urban landscape not as obsolete, but as a foundation for renewal—acknowledging its spatial and social legacy while contributing to the environmental and cultural revival of the area.
Village House demonstrates how modest, thoughtful architecture can support rural regeneration and foster continuity between past and present.
.jpeg)

.jpeg)







