
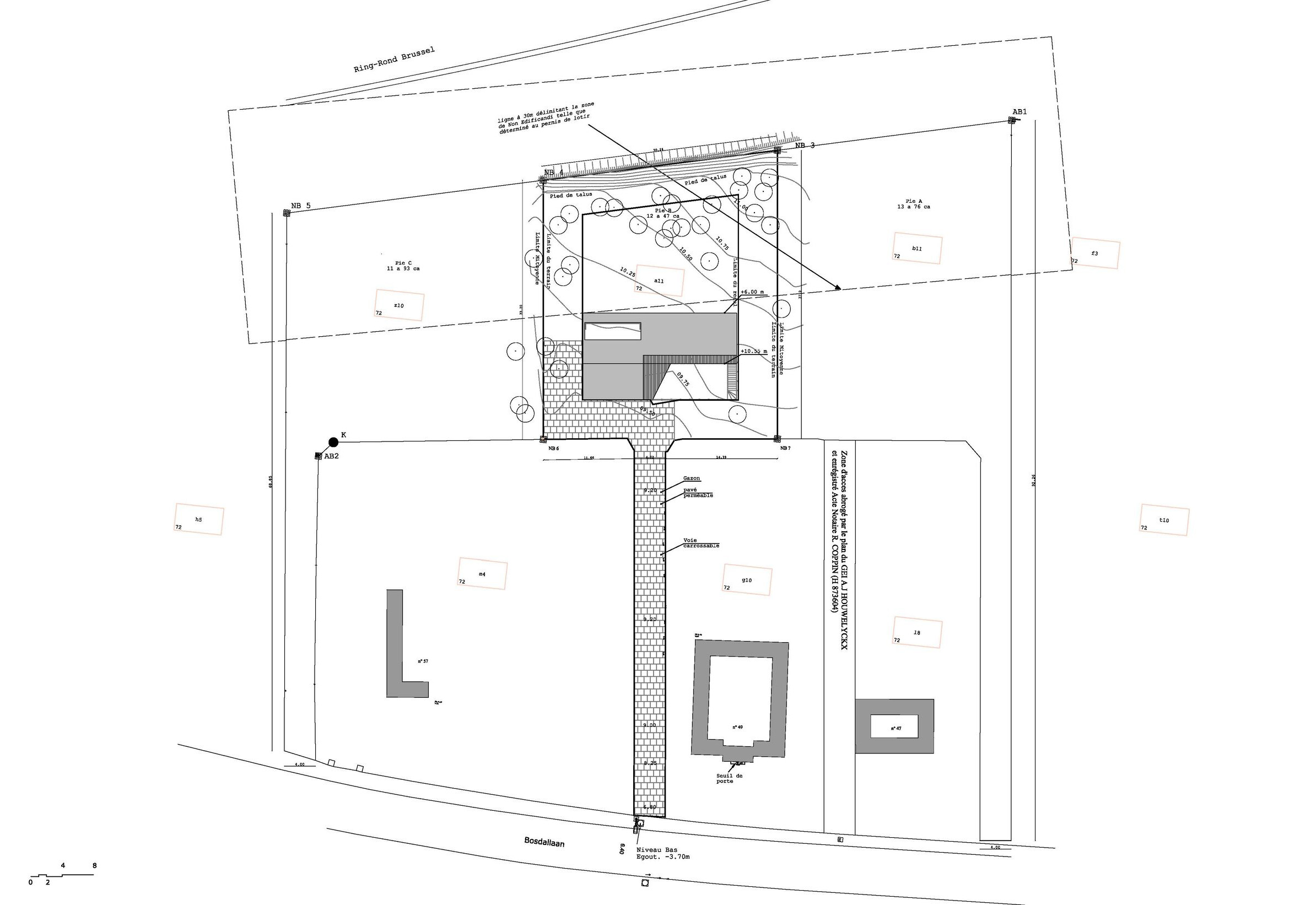
Villa HY is a residential project designed for a wooded plot in Kraainem, adjacent to the Brussels Ring. While the site benefits from dense vegetation and open views, it also contends with significant acoustic constraints. The architectural approach addresses this duality by placing a strong visual emphasis on the natural setting while mitigating external noise.
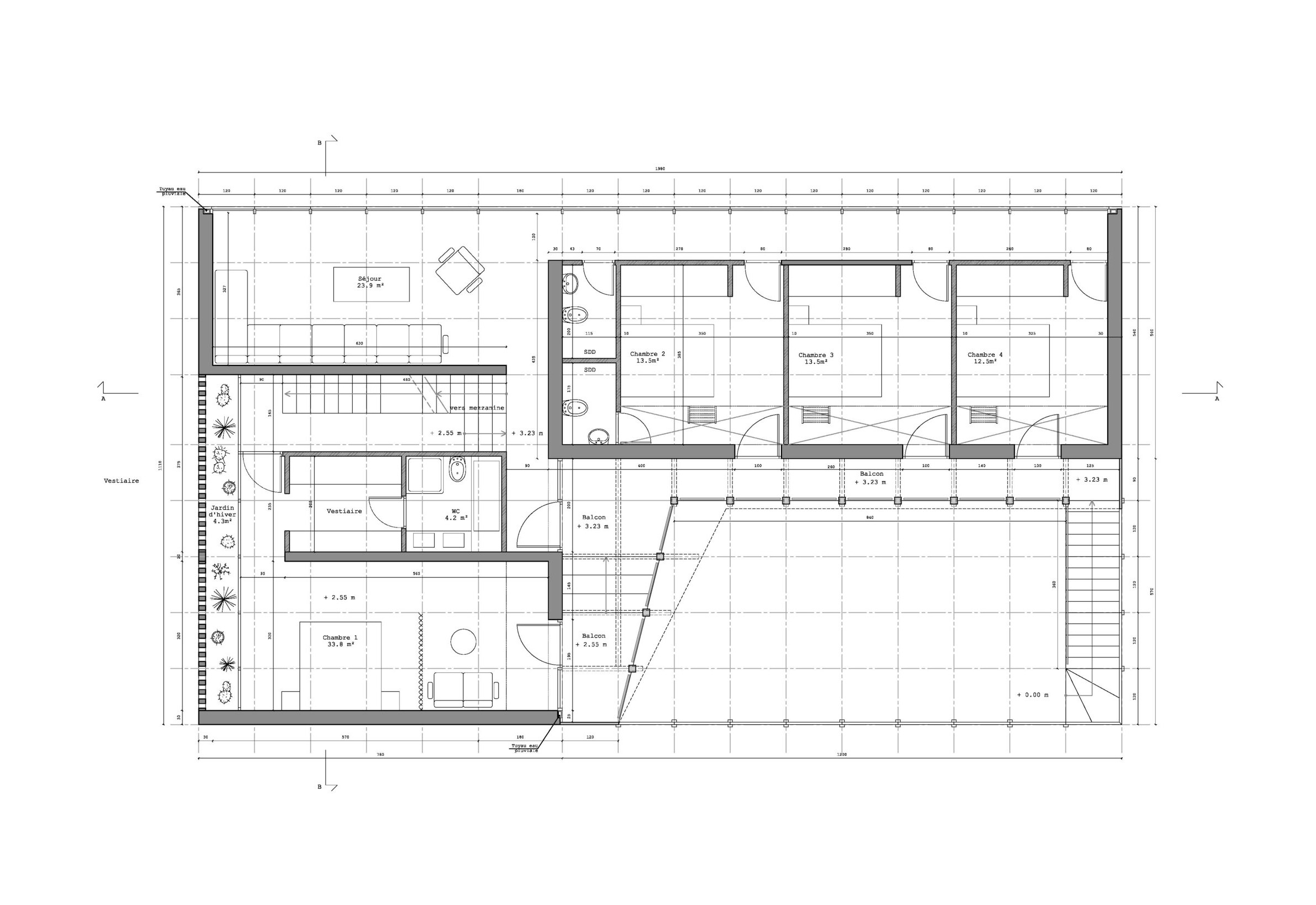
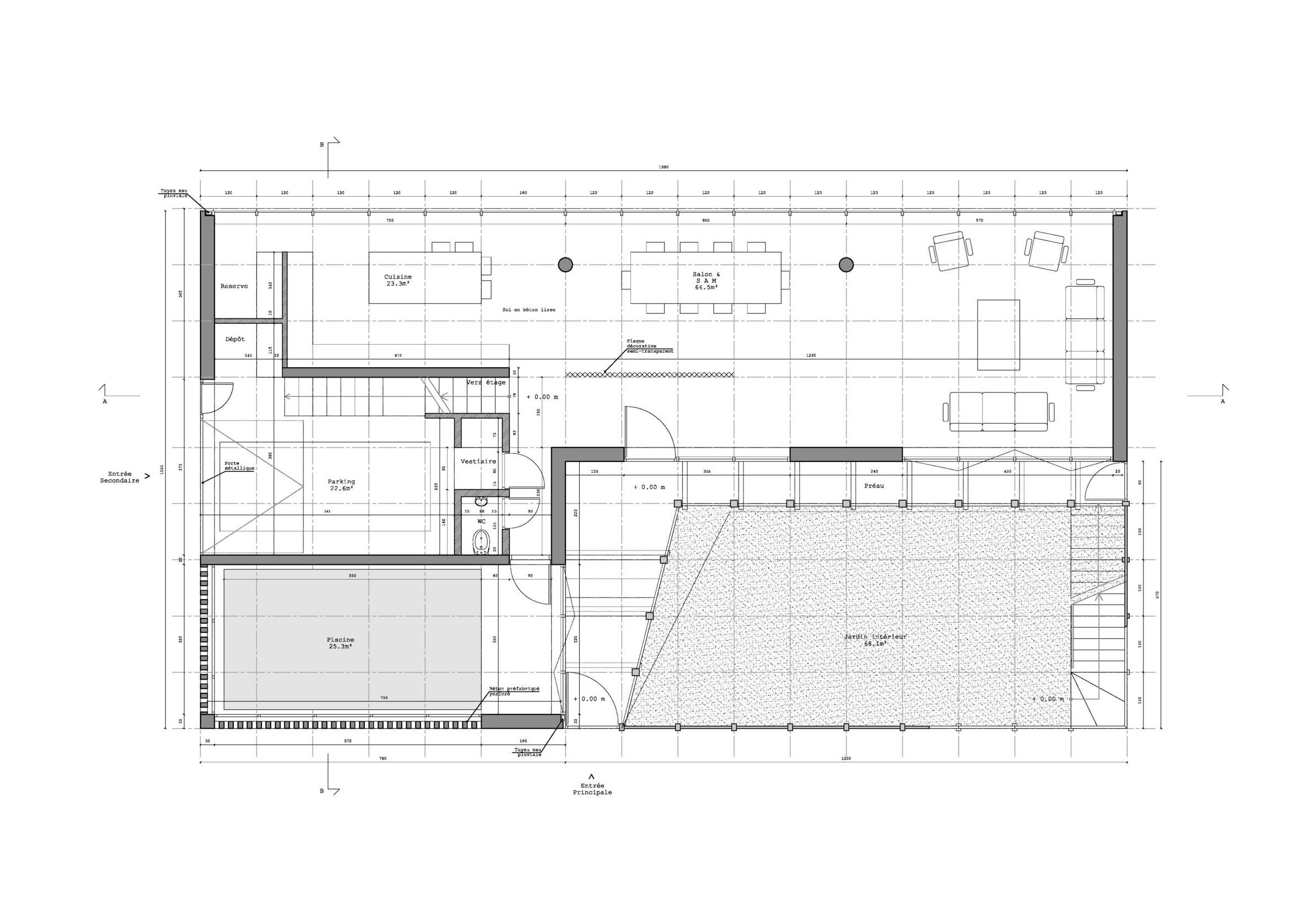
A double-height, south-facing fixed window offers panoramic views from the main living spaces and maximizes natural light. An interior garden at the heart of the house extends the ground floor and links the living room and indoor pool, while also providing an intimate, green focal point visible from the upper level.
This garden also enhances the privacy and sociability of the first-floor bedrooms, acting as a shared outdoor extension. The design emphasizes openness, light, and fluid transitions between interior and exterior, all while maintaining acoustic comfort in a challenging context.
.jpg)











