
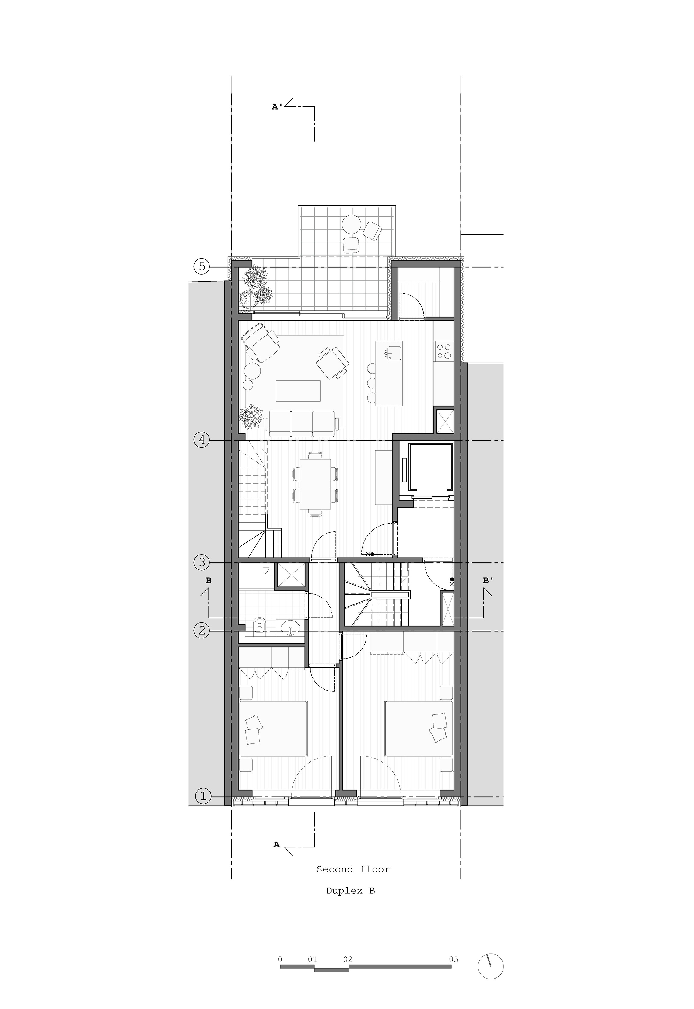
Korenbeek 161 is a residential building consisting of three duplex apartments. Due to the narrow plot, each unit stretches from façade to façade and spans one and a half levels, interlocking vertically like a Chinese puzzle. Each apartment features three bedrooms and enjoys both north and south orientations, with terraces overlooking the garden.
The building’s southern polycarbonate façade allows soft natural light into the bedrooms while preserving privacy through its translucent quality. A ventilation gap between the structure and the polycarbonate layer provides continuous airflow along the façade.























