
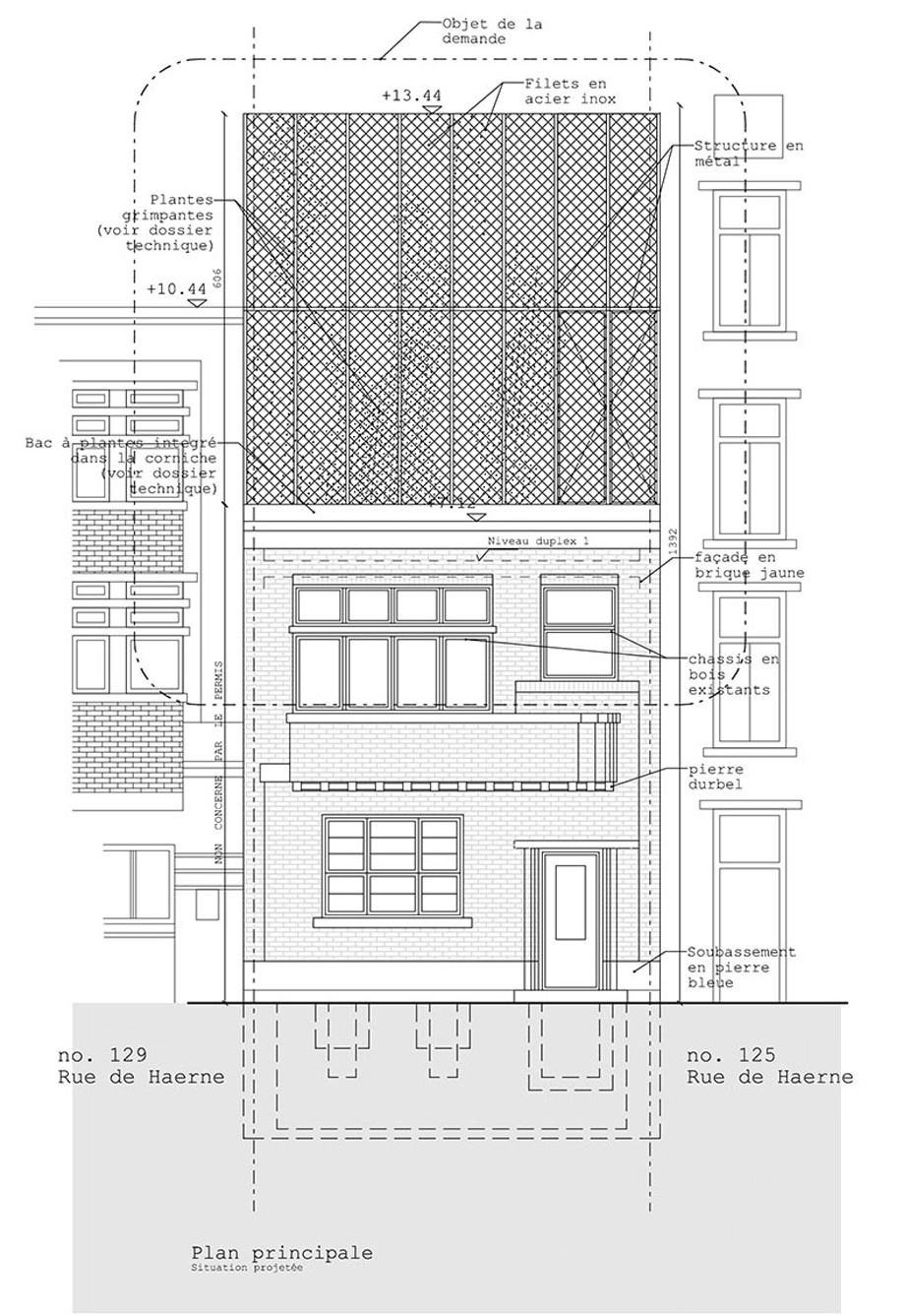
Haerne is a conceptual extension of a 1932 modernist building in Brussels, designed by Paul Eenens. The project proposes a strikingly contemporary addition, an open, green-infused façade that contrasts with the solid, yellow brick volume of the original structure.



