
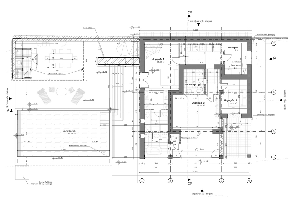
Gumuchdjian House is a summer villa situated in Ushi, a rural village in Armenia. The design focuses on extending and completing an existing, partially built structure with minimal alterations to the original footprint. The intervention is part of a larger urban regeneration effort aimed at transforming neglected Soviet-era developments into livable, contemporary homes.
By adapting to the existing construction and landscape, the house blends seamlessly into its surroundings while offering a renewed and functional domestic space. The approach emphasises reuse, light intervention, and respect for the local context.







