
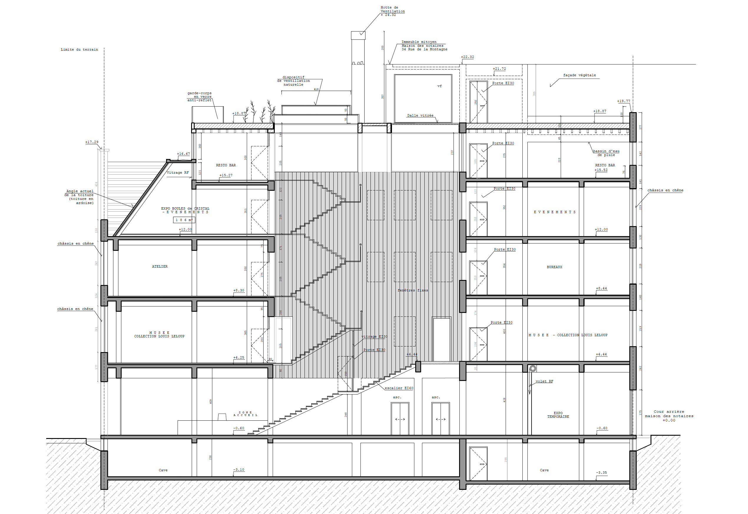
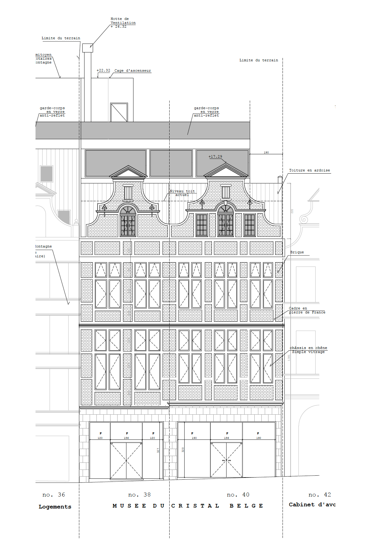
The Belgian Crystal Museum is an ongoing cultural landmark in the heart of Brussels, conceived to house a rare and extensive collection of crystal art and to celebrate the legacy of renowned glass sculptor Louis Leloup. Positioned centrally within the city, the museum expands Brussels’ cultural infrastructure and bridges craft and contemporary practice, reaffirming Belgium’s place in the tradition of fine glassmaking.








